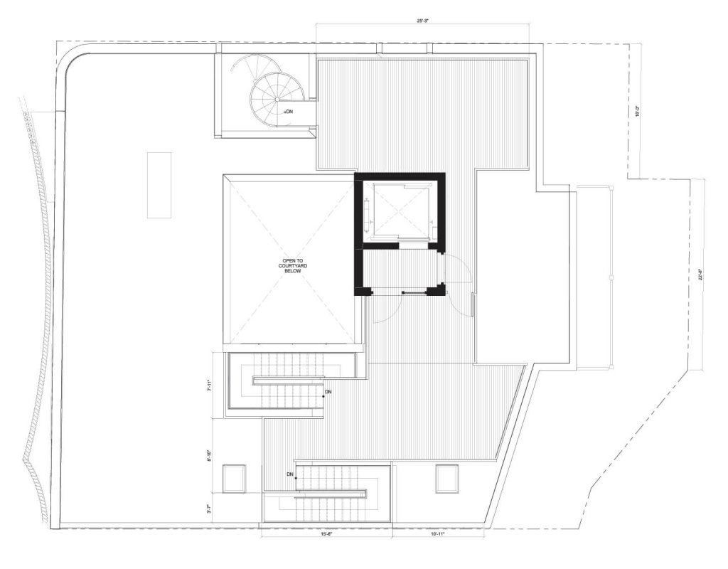
Unit 501

Unit Details

Available: 2,495,000
Floor Level: 5
Bedrooms: 4
Bathrooms: 4
Balconies: Yes
Roof Deck: Yes
Square Feet: Indoor 2,607 sq. ft. + 450 SF Outdoor space
Parking Spaces: 2

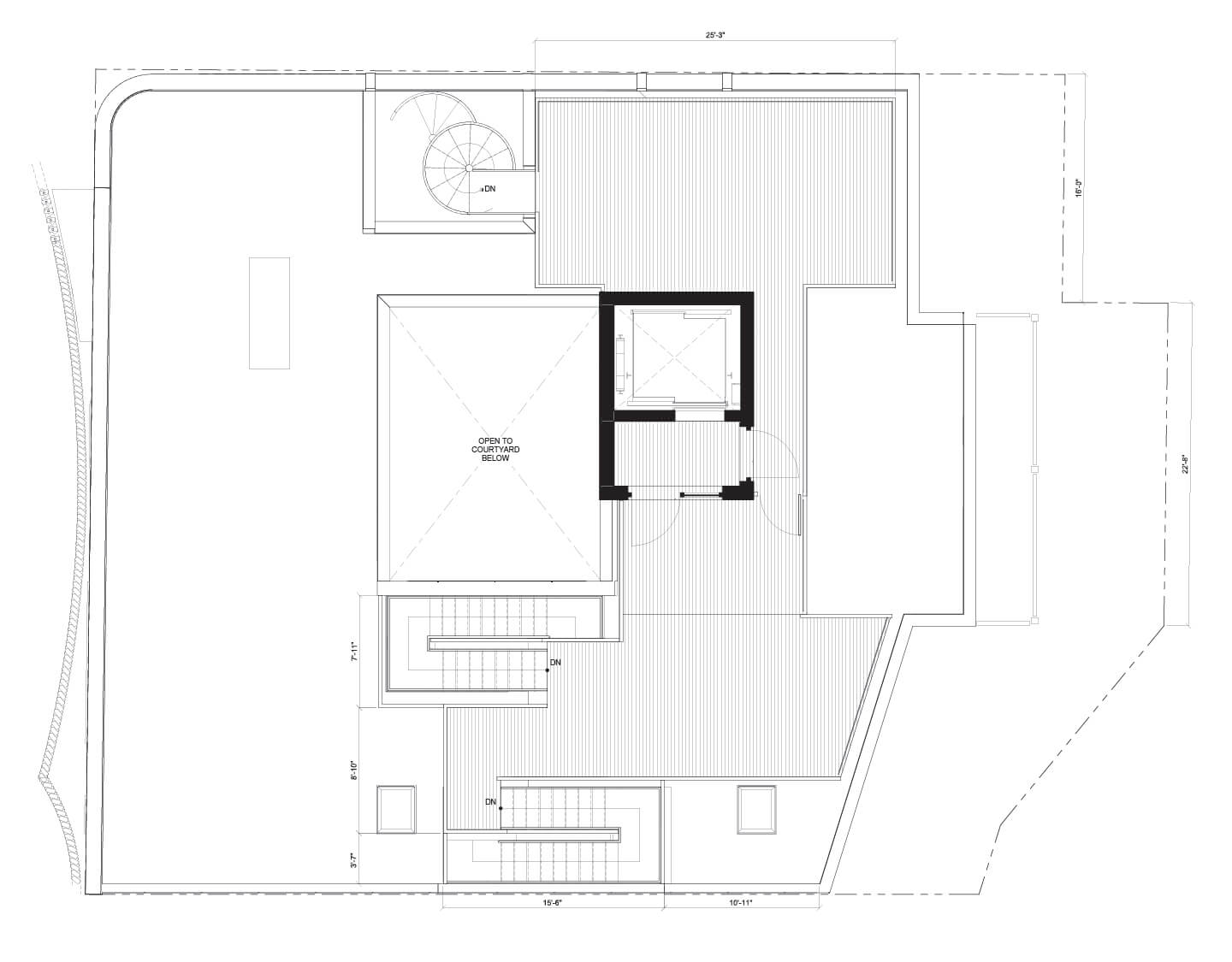
Other Floors